Saturnusstraat 365

ZWIJNDRECHT

€ 450.000,- k.k.

Helaas, deze woning is verkocht onder voorbehoud.

Misschien zit uw droomwoning wel in ons huidige aanbod.

Huidig aanbod

Omschrijving

Maar liefst 103 m2 woongenot met een ruim zonnig balkon op het zuidwesten, prachtig uitzicht op groen én een eigen parkeerplaats!
Saturnusstraat 365 heeft het allemaal.
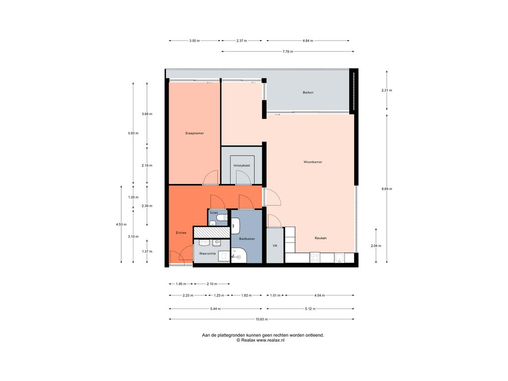
Dit lichte en ruime 3-kamer appartement met lift is prachtig gelegen op de hoek van de 6e woonlaag van een modern kleinschalig appartementencomplex dat gebouwd is in 2007.
Het appartement biedt o.a. een royale woonkamer met open keuken en schuifpui naar het zonnige balkon op het zuidwesten. De lichte keuken is voorzien van diverse inbouwapparatuur en een voorraadkast. Vanuit de woonkamer is er toegang tot een hobbykamer.
Daarnaast beschikt het appartement over een royale slaapkamer met kastenwand, een inloopkast die vanuit de hal te bereiken is, een licht betegelde badkamer met inloopdouche, een separate toiletruimte en een aparte berging/wasruimte met opstelplaats cv-installatie.
De ligging is ideaal: op loopafstand van winkels met alle dagelijkse voorzieningen binnen handbereik.
Nieuwsgierig geworden? Maak dan gerust een afspraak voor een bezichtiging! Van harte welkom.

Indeling:

Begane grond:
Gesloten entree met bellentableau, brievenbussen en video-intercom. Vanuit de centrale hal zijn het trappenhuis, de lift en het afgesloten parkeerterrein bereikbaar.

6e verdieping:
Vanuit de lift komt u op een ruime overloop met toegang tot de entree van het appartement.
Hier bevindt zich de meterkast en een extra bergkast.

Entree appartement:
Ruime hal met toegang tot de berging/wasruimte, voorzien van de HR CV-combiketel (Nefit Proline, 2019), Agpo WTWS-ventilatie-unit en aansluitingen voor wasmachine en droger.

De nette toiletruimte is uitgevoerd met een hangcloset, fonteintje en is geheel betegeld in een frisse combinatie van witte wandtegels en zwart/witte vloertegels.

Badkamer:
De badkamer is voorzien van een douche en wastafelmeubel met spiegel.
De afwerking is in dezelfde stijl als het toilet: witte wandtegels en zwart/witte vloertegels.

Slaapkamer:
Ruime slaapkamer (afmeting ca. 5,93 x 3,00 m) heeft toegang tot het (zeem)balkon via een schuifpui.
Deze is voorzien van elektrische screens.

Vanuit de hal is er een ruime inloopkast te bereiken.

De royale, sfeervolle woonkamer met open keuken (oppervlakte ca. 45 m²) beschikt over een grote hoeveelheid daglicht dankzij de vele ramen en biedt toegang tot het balkon via een schuifpui met hor. Het uitzicht is werkelijk prachtig.
De zijramen in de woonkamer zijn uitgerust met elektrische screens.
Aangrenzend aan de woonkamer ligt een praktische werk-/hobbykamer (afmeting ca 3,68 x 2,37 m). Deze is voorzien van elektrische screens.

De moderne keuken in L-opstelling is uitgevoerd in een lichte kleurstelling met een donker composiet werkblad.
De keuken is voorzien van o.a. inductiekookplaat, afzuigkap, oven, koelkast, vriezer, 1,5 spoelbak, apothekerskast en vaatwasser.
Alle keukenapparatuur is vervangen in 2020.

Aangrenzend bevindt zich een ruime provisie-/bergruimte.

Balkon:
Het royale balkon (ca. 11 m² excl. zeembalkon) is gelegen op het zuidwesten en is voorzien van elektrisch bedienbare screens en een buitenkraan. Dit is een heerlijke plek om van de middag- en avondzon te genieten.

Bijzonderheden:
Sfeervol en licht appartement op een fraaie locatie.
Groot balkon op het zuidwesten met prachtig uitzicht.
Handige indeling met veel bergruimte en een aparte wasruimte.
De woning is voorzien van elektrische screens.
Eigen parkeerplaats op het afgesloten parkeerterrein.
Winkels en openbaar vervoer op loopafstand.
V.v.E.-bijdrage: € 213,23 per maand.

Van belang zijnde informatie:
Alle aanbiedingen worden gedaan onder de navolgende voorwaarden:
Nadrukkelijk vermelden wij dat deze informatieverstrekking niet als een aanbieding of offerte mag worden beschouwd en is niet meer dan een uitnodiging tot het doen van een bod.
Aan deze gegevens kunnen derhalve geen rechten worden ontleend en zijn wijzigingen voorbehouden.
De vermelde afmetingen/ oppervlakten in deze informatie zijn gemeten op basis van de BBMI (Branche Brede Meetinstructie).
De meetinstructie is bedoeld om een meer eenduidige manier van meten toe te passen voor het geven van een indicatie van de gebruiksoppervlakte.
De meetinstructie sluit verschillen in meetuitkomsten niet volledig uit, door bijvoorbeeld interpretatieverschillen, afrondingen of beperkingen bij het uitvoer en van de meting.
Indien er plattegronden aan deze brochure zijn toegevoegd, houdt u er dan rekening mee dat deze plattegronden slechts een indicatie geven van de indeling.
Verkopers behouden zich uitdrukkelijk het recht tot gunning voor.
Tussentijdse verkoop voorbehouden.
Het uitbrengen van een bod betekent niet automatisch dat u in onderhandeling bent.
Bij meerdere serieuze kandidaten kan verkoper besluiten tot een inschrijving.
+ Lees meer

Kenmerken

Overdracht

Vraagprijs
€ 450.000,- k.k.
Status
verkocht onder voorbehoud
Aanvaarding
in overleg

VvE checklist

Inschrijving KVK
Ja
Jaarlijkse vergadering
Ja
Periodieke bijdrage
Ja (213,23 per maand)
Reservefonds aanwezig
Ja
Onderhoudsplan
Ja
Opstalverzekering
Ja

Bouw

Soort woning
appartement
Soort appartement
portiekflat
Aantal woonlagen
1
Woonlaag
6
Bouwvorm
bestaande bouw
Bouwjaar
2007
Open portiek
nee
Huidige bestemming
woonruimte
Onderhoud binnen
goed
Onderhoud buiten
goed
Voorzieningen
lift
Isolatie
dakisolatie, muurisolatie, dubbel glas

Energie

Energielabel
A
Verwarming
cv ketel
Warm water
cv ketel
C.V.-ketel
gas gestookte combi-ketel uit 2019 van Nefit Proline, eigendom

Oppervlakten en inhoud

Woonoppervlakte
103 m²
Bergruimte oppervlakte
10 m²
Buitenruimte oppervlakte
14 m²

Indeling

Aantal kamers
3
Aantal slaapkamers
2

Buitenruimte

Ligging
in woonwijk

Bergruimte

Garage
parkeerplaats
Parkeergelegenheid
op afgesloten terrein

Foto's

Saturnusstraat 365, ZWIJNDRECHT
Saturnusstraat 365, ZWIJNDRECHT
Saturnusstraat 365, ZWIJNDRECHT
Saturnusstraat 365, ZWIJNDRECHT
Saturnusstraat 365, ZWIJNDRECHT
Saturnusstraat 365, ZWIJNDRECHT
Saturnusstraat 365, ZWIJNDRECHT
Saturnusstraat 365, ZWIJNDRECHT
Saturnusstraat 365, ZWIJNDRECHT
Saturnusstraat 365, ZWIJNDRECHT
Saturnusstraat 365, ZWIJNDRECHT
Saturnusstraat 365, ZWIJNDRECHT
Saturnusstraat 365, ZWIJNDRECHT
Saturnusstraat 365, ZWIJNDRECHT
Saturnusstraat 365, ZWIJNDRECHT
Saturnusstraat 365, ZWIJNDRECHT
Saturnusstraat 365, ZWIJNDRECHT
Saturnusstraat 365, ZWIJNDRECHT
Saturnusstraat 365, ZWIJNDRECHT
Saturnusstraat 365, ZWIJNDRECHT
Saturnusstraat 365, ZWIJNDRECHT
Saturnusstraat 365, ZWIJNDRECHT
Saturnusstraat 365, ZWIJNDRECHT
Saturnusstraat 365, ZWIJNDRECHT
Saturnusstraat 365, ZWIJNDRECHT
Saturnusstraat 365, ZWIJNDRECHT
Saturnusstraat 365, ZWIJNDRECHT
Saturnusstraat 365, ZWIJNDRECHT
Saturnusstraat 365, ZWIJNDRECHT

Plattegronden

Een afspraak maken?