Kort-Ambachtlaan 85

ZWIJNDRECHT

€ 250.000,- k.k.

Helaas, deze woning is verkocht onder voorbehoud.

Misschien zit uw droomwoning wel in ons huidige aanbod.

Huidig aanbod

Omschrijving

Wonen op een toplocatie, direct bij winkels en met een zonnig balkon op het zuidwesten?
Dit ruime 3 (voorheen 4)-kamer appartement op de 3e verdieping biedt precies dat!
Het appartement heeft een lichte vergrote woonkamer, een keuken in hoekopstelling met diverse inbouwapparatuur, 2 ruime slaapkamers, een nette badkamer en een aparte toiletruimte.
Daarnaast is er een privé berging in de onderbouw.
Het appartement is in 2022 geheel voorzien van dubbel glas.
Dit appartement is zeer geschikt voor starters en singles!

Indeling:

Begane grond:
Afgesloten centrale hal met bellentableau, trappenhuis en bergingen.

3e verdieping:

Entree/hal:
Entree met garderobe, gemoderniseerde meterkast (voorzien van 9 groepen waarvan 5 in gebruik) en toegang tot de vertrekken.

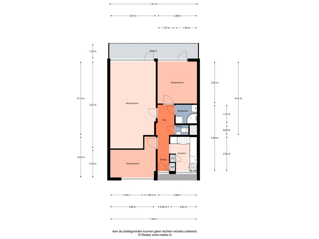
Woonkamer:
De ruime woonkamer (ca. 7,30 x 3,88 m) is vergroot en voorzien van een nette laminaatvloer. Vanuit de woonkamer heb je toegang tot het balkon met uitzicht op groen en het winkelend publiek.

Keuken:
De keuken (ca. 2,97 x 2,29 m) is gelegen aan de galerijzijde en is uitgevoerd in een hoekopstelling met gaskookplaat, elektrische oven, koel-/vriescombinatie en vaatwasmachine.
Ook is er een inbouwkast aanwezig.

Badkamer:
De badkamer is lichtgrijs betegeld en voorzien van een douchecabine en wastafel.

Toiletruimte:
Eveneens licht betegeld en voorzien van een fonteintje.

Slaapkamers:
De hoofdslaapkamer (ca. 3,57 x 3,30 m) is gelegen aan de balkonzijde en heeft toegang tot het balkon.
Deze kamer is voorzien van airco.

De tweede slaapkamer (ca. 2,33 x 3,85 m) is gelegen aan de galerijzijde. en is ontstaan door het samenvoegen van twee kamers. Beide kamers zijn voorzien van laminaatvloeren.

Balkon:
Een heerlijk ruim en zonnig balkon op het zuidwesten (ca. 7,5 m breed) met uitzicht op groen en de levendige winkelstraat. De vloer is afgewerkt met steigerhouten vlonders en de privacy schermen zijn vernieuwd.

Berging:
Privé berging op de begane grond.

Bijzonderheden:
Gelegen in de wijk Kort Ambacht.
Houten kozijnen met dubbel glas.
CV-blokverwarming, warm water via elektrische boiler 50 l (eigendom).
VvE-bijdrage: € 227,- per maand incl. voorschot stookkosten.
Groot balkon op het zuidwesten.
Privé berging op de begane grond.
Oplevering in overleg (begin maart 2026).

Van belang zijnde informatie:
Alle aanbiedingen worden gedaan onder de navolgende voorwaarden:
Nadrukkelijk vermelden wij dat deze informatieverstrekking niet als een aanbieding of offerte mag worden beschouwd en is niet meer dan een uitnodiging tot het doen van een bod.
Aan deze gegevens kunnen derhalve geen rechten worden ontleend en zijn wijzigingen voorbehouden. De vermelde afmetingen/ oppervlakten in deze informatie zijn gemeten op basis van de BBMI (Branche Brede Meetinstructie).
De meetinstructie is bedoeld om een meer eenduidige manier van meten toe te passen voor het geven van een indicatie van de gebruiksoppervlakte.
De meetinstructie sluit verschillen in meetuitkomsten niet volledig uit, door bijvoorbeeld interpretatieverschillen, afrondingen of beperkingen bij het uitvoer en van de meting.
Indien er plattegronden aan deze brochure zijn toegevoegd, houdt u er dan rekening mee dat deze plattegronden slechts een indicatie geven van de indeling.
Verkopers behouden zich uitdrukkelijk het recht tot gunning voor.
Tussentijdse verkoop voorbehouden.
Het uitbrengen van een bod betekent niet automatisch dat u in onderhandeling bent.
Bij meerdere serieuze kandidaten kan verkoper besluiten tot een inschrijving.
+ Lees meer

Kenmerken

Overdracht

Vraagprijs
€ 250.000,- k.k.
Status
verkocht onder voorbehoud
Aanvaarding
per datum

VvE checklist

Inschrijving KVK
Ja
Jaarlijkse vergadering
Ja
Periodieke bijdrage
Ja (227,00 per maand)
Reservefonds aanwezig
Ja
Onderhoudsplan
Ja
Opstalverzekering
Ja

Bouw

Soort woning
appartement
Soort appartement
galerijflat
Aantal woonlagen
1
Woonlaag
3
Bouwvorm
bestaande bouw
Bouwjaar
1963
Open portiek
nee
Huidige bestemming
woonruimte
Onderhoud binnen
goed
Onderhoud buiten
goed
Isolatie
dubbel glas

Energie

Energielabel
G
Verwarming
blokverwarming
Warm water
cv ketel, elektrische boiler eigendom

Oppervlakten en inhoud

Woonoppervlakte
68 m²
Bergruimte oppervlakte
8 m²
Buitenruimte oppervlakte
9 m²

Indeling

Aantal kamers
3
Aantal slaapkamers
2

Buitenruimte

Ligging
in woonwijk

Bergruimte

Garage
geen garage
Parkeergelegenheid
openbaar parkeren
Schuur/berging
inpandig

Foto's

Kort-Ambachtlaan 85, ZWIJNDRECHT
Kort-Ambachtlaan 85, ZWIJNDRECHT
Kort-Ambachtlaan 85, ZWIJNDRECHT
Kort-Ambachtlaan 85, ZWIJNDRECHT
Kort-Ambachtlaan 85, ZWIJNDRECHT
Kort-Ambachtlaan 85, ZWIJNDRECHT
Kort-Ambachtlaan 85, ZWIJNDRECHT
Kort-Ambachtlaan 85, ZWIJNDRECHT
Kort-Ambachtlaan 85, ZWIJNDRECHT
Kort-Ambachtlaan 85, ZWIJNDRECHT
Kort-Ambachtlaan 85, ZWIJNDRECHT
Kort-Ambachtlaan 85, ZWIJNDRECHT
Kort-Ambachtlaan 85, ZWIJNDRECHT
Kort-Ambachtlaan 85, ZWIJNDRECHT
Kort-Ambachtlaan 85, ZWIJNDRECHT
Kort-Ambachtlaan 85, ZWIJNDRECHT
Kort-Ambachtlaan 85, ZWIJNDRECHT
Kort-Ambachtlaan 85, ZWIJNDRECHT

Plattegronden

Een afspraak maken?